Aménagement d'un bâtiment IV
Sur cette parcelle d'un peu plus de 1 ha on trouve une maison et quelques bâtiments. La maison est devenue trop petite pour accueillir toute la famille et donc il a été décidé de rénover un des bâtiments en maison d'amis.
L'idéal était de (re)construire le projet à quelques mètres plus vers l'intérieur du terrain pour avoir un peu plus d'espace autour de la maison d'amis et pour économiser un peu sur les coûts de la construction. Les réglementations locales sont très strictes et donc seule la rénovation de la grange a été autorisée. Un agrandissement de 50% de la surface au sol a été autorisé.
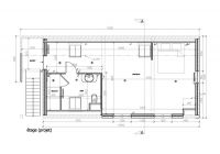
En faisant le choix de ne pas agrandir comme c'est l'habitude dans la longueur ou en forme de «L» mais dans la largeur, on a réussi de créer de beaux volumes. La surface utile de la maison d'amis est d'environ 100m². On a au rez-de-chaussée un garage, un espace de travail et un local technique. A l'étage il y a un’loft’ dans lequel on trouve de l'espace pour cuisiner, s'asseoir, se coucher et une salle de douche avec WC.